Skip to main content
Get Free Delivery at Checkout on All Shop Online Products! Shop Now
1800 681 168 Find a showroom Request a quote
  • Products

    Custom-Made Products

    Inspiration to Installation, explore our top-quality Stegbar craftmanship.

    • Doors
      • eX Hybrid Hybrid Thermally Broken Aluminium
          Slimline Sliding and Stacking Doors
          Accessible Sliding Doors
      • EnviraSlim Thermally Broken Energy Efficient Aluminium
          All EnviraSlim Doors
      • EnviraLuxe Thermally Broken Architectural Energy Efficient Aluminium
          All EnviraLuxe Doors
      • Alumiere Premium Architectural Aluminium
          Hinged Doors
          Sliding and Stacking Doors
      • Residential Aluminium for Residential Homes
          Accessible Sliding Doors
          Bi-fold Doors
          Hinged Doors
          Sliding and Stacking Doors
          Statesman Pivot Doors
      • Timberaul Cedar and Meranti Collections
          Bi-fold Doors
          Hinged Doors
          Sliding and Stacking Doors
      • Siteline Aluminium and Cedar Composite
          Bi-fold Doors
          Hinged Doors
          Sliding Doors
      • Aluminium Commercial Aluminium for Commercial Applications
          All Commercial Doors

      RECOMMENDED

      eX Hybrid Slimline Doors

    • Windows
      • eX Hybrid Hybrid Thermally Broken Aluminium
          Slimline Awning Window
      • EnviraSlim Thermally Broken Energy Efficient Aluminium
          All EnviraSlim Windows
      • EnviraLuxe Thermally Broken Architectural Energy Efficient Aluminium
          All EnviraLuxe Windows
      • Alumiere Premium Architectural Aluminium
          Aneeta Sashless Windows
          Awning Windows
          Breezway Louvre Windows
          Casement Windows
          Double Hung Windows
          Fixed Windows
          Gas Strut Window
          Sliding and Stacking Windows
      • Residential Aluminium for Residential Homes
          Aneeta Sashless Windows
          Awning Windows
          Bi-fold Windows
          Breezway Louvre Windows
          Casement Windows
          Double Hung Windows
          Fixed Windows
          Sliding Windows
      • Timberaul Cedar and Meranti Collections
          Awning Windows
          BI-fold Windows
          Breezway Louvre Windows
          Casement Windows
          Double Hung Windows
          Fixed Windows
          Sliding Windows
      • Siteline Aluminium and Cedar Composite
          Aneeta Sashless Windows
          Awning Windows
          Bi-fold Windows
          Casement Windows
          Fixed Windows
      • Aluminium Commercial Aluminium for Commercial Purposes
          All Commercial Windows

      Recommended

      eX Hybrid Slimline Windows

    • Showerscreens
      • Frameless
      • Semi-Frameless

      RECOMMENDED

      Frameless Shower Screens

    • Wardrobes
      • Galleria Wardrobes
      • Sliding Doors
      • Hinged Doors

      RECOMMENDED

      Galleria Wardrobe Collection

    • Splashbacks
      • Create Colour
      • Create Mirror
      • Create Natural
      • Create Metallic
      • Create Design

      RECOMMENDED

      Colour Collection

    • Mirrors
      • Shaped Mirrors
      • Frameless Mirrors
      • Framed Mirrors

      RECOMMENDED

      Shaped Mirrors

    • Window & Door Installation
    • Wardrobe Consultation & Installation
  • Shop Online

    SHOP ONLINE

    Explore our top-quality Stegbar craftmanship, delivered to your doorstep.

    • Windows
    • Doors
    • Wardrobes

      Measuring an Opening for Your Stegbar Galleria Wardrobe

    • Shower Screens

      Choosing between Clip vs. Channel Fixed Frameless Showerscreen Panels

    • Mirrors

      Tips on using mirrors to transform your space | Stegbar

    • Shop Online Support Centre
    • Installation Guidelines
  • Explore

    DISCOVER MORE

    Welcome to the Explore section of Stegbar, where your journey to crafting exceptional living spaces begins.

    • Energy Efficiency
    • Blog

      RECOMMENDED

      How to clean double-storey windows

    • Selection Guides & Advice

      RECOMMENDED

      Benefits of aluminium windows & doors

    • Projects
    • Resources

      RECOMMENDED

      Brochures

    • Care and Maintenance Centre
  • 1800 681 168
  • Find a showroom
Website Logo

Free Delivery:

 At checkout get Free Delivery on our entire Shop Online range. NOTE: Due to Christmas shutdown, all orders placed after 30 November will be delivered late January.

  • Home
  • Wardrobes
  • E0001053
Products
Doors
eX Hybrid
Hybrid Thermally Broken Aluminium
Slimline Sliding and Stacking Doors
Accessible Sliding Doors
EnviraSlim Thermally Broken
Energy Efficient Aluminium
All EnviraSlim Doors
EnviraLuxe Thermally Broken
Architectural Energy Efficient Aluminium
All EnviraLuxe Doors
Alumiere
Premium Architectural Aluminium
Hinged Doors
Sliding and Stacking Doors
Residential
Aluminium for Residential Homes
Accessible Sliding Doors
Bi-fold Doors
Hinged Doors
Sliding and Stacking Doors
Statesman Pivot Doors
Timberaul
Cedar and Meranti Collections
Bi-fold Doors
Hinged Doors
Sliding and Stacking Doors
Siteline
Aluminium and Cedar Composite
Bi-fold Doors
Hinged Doors
Sliding Doors
Aluminium Commercial
Aluminium for Commercial Applications
All Commercial Doors
Windows
eX Hybrid
Hybrid Thermally Broken Aluminium
Slimline Awning Window
EnviraSlim Thermally Broken
Energy Efficient Aluminium
All EnviraSlim Windows
EnviraLuxe Thermally Broken
Architectural Energy Efficient Aluminium
All EnviraLuxe Windows
Alumiere
Premium Architectural Aluminium
Aneeta Sashless Windows
Awning Windows
Breezway Louvre Windows
Casement Windows
Double Hung Windows
Fixed Windows
Gas Strut Window
Sliding and Stacking Windows
Residential
Aluminium for Residential Homes
Aneeta Sashless Windows
Awning Windows
Bi-fold Windows
Breezway Louvre Windows
Casement Windows
Double Hung Windows
Fixed Windows
Sliding Windows
Timberaul
Cedar and Meranti Collections
Awning Windows
BI-fold Windows
Breezway Louvre Windows
Casement Windows
Double Hung Windows
Fixed Windows
Sliding Windows
Siteline
Aluminium and Cedar Composite
Aneeta Sashless Windows
Awning Windows
Bi-fold Windows
Casement Windows
Fixed Windows
Aluminium Commercial
Aluminium for Commercial Purposes
All Commercial Windows
Showerscreens
Frameless
Semi-Frameless
Wardrobes
Galleria Wardrobes
Sliding Doors
Hinged Doors
Splashbacks
Create Colour
Create Mirror
Create Natural
Create Metallic
Create Design
Mirrors
Shaped Mirrors
Frameless Mirrors
Framed Mirrors
Window & Door Installation
Wardrobe Consultation & Installation
Shop Online
Windows
Doors
Wardrobes
Shower Screens
Mirrors
Shop Online Support Centre
Installation Guidelines
Explore
Energy Efficiency
Blog
Selection Guides & Advice
Projects
Resources
Care and Maintenance Centre
1800 681 168
Find a showroom
My Collection
Suggestions
Products
DIY Buy Now Products

Built in Wardrobes

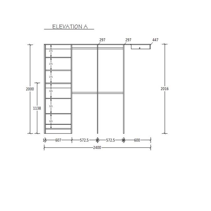
Galleria Wardrobe 12.0U

Free Delivery:

 At checkout get Free Delivery on our entire Shop Online range. NOTE: Due to Christmas shutdown, all orders placed after 30 November will be delivered late January.

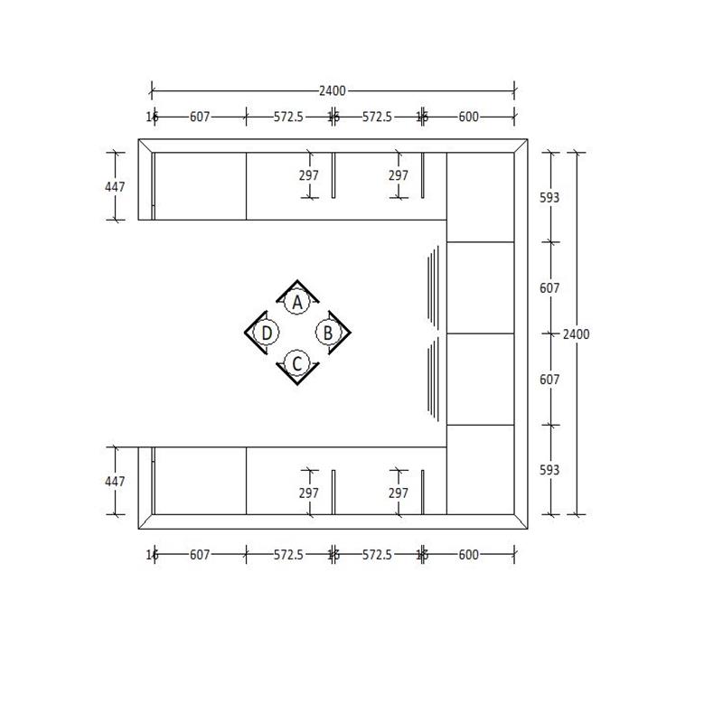
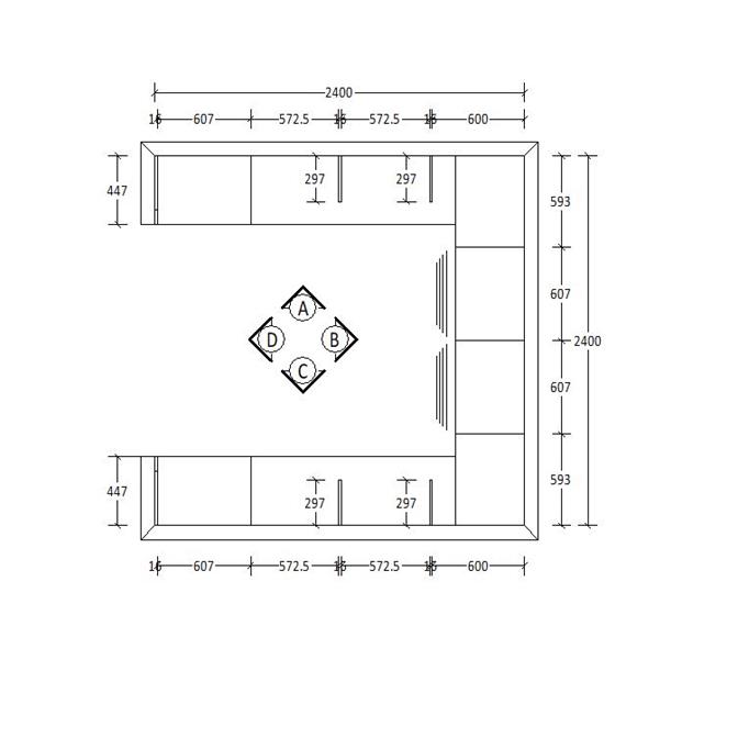
How to measure your wardrobe opening?
Board Material Colour
Matt Wardrobe White
Show more
Handle Style Colour
T23 Inox
check your postcode
Delivery Do we deliver to your postcode?
    *Mandatory field
    Please enter your postcode to set your delivery location. Once set you will be able to view delivery availability and add the product to cart.
    Delivery Change
    Delivery available to
    Expected delivery:
    We're sorry! That area falls outside of our delivery zone for DIY Buy Online products.
    However, our custom product range may still offer coverage in your area. To find out more, talk to one of our expert staff about your requirements. Place a website enquiry or find your closest showroom today.

    Product Description

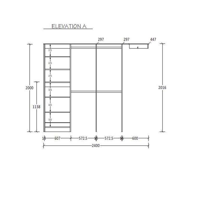
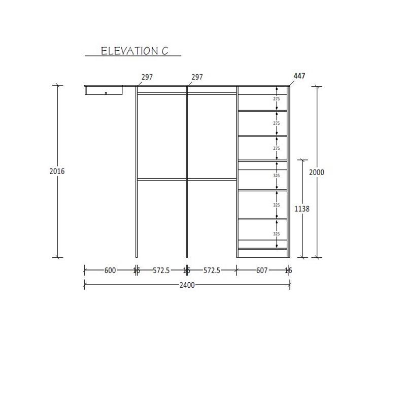
    Stegbar's U-Shaped Walk-In Wardrobes are the epitome of luxury and efficiency, designed to provide an expansive and organized storage solution. Perfect for those who need ample space and appreciate a well-structured environment, these wardrobes are a stylish addition to your home.

    Key Features:
    Maximized Space: The U-shaped design offers extensive storage capacity, utilizing every corner for optimal organization.
    High-Quality Materials: Built with premium materials that ensure durability and a sophisticated appearance.
    Elegant Finishes: Available in a range of finishes and colors to complement your home decor.
    Soft-Close Technology: Experience the smooth and quiet operation of doors and drawers with soft-close mechanisms.

    Elevate your storage experience with Stegbar's U-Shaped Walk-In Wardrobes. Enjoy the perfect blend of functionality and elegance, tailored to create a seamless and luxurious addition to your home.

    Documents and Downloads

    Galleria Walk In Robe 12.0 Installation Guidelines.pdf
    Download

    Packaging Dimensions

    Our shop online package weights vary. Be sure to have a helping hand, as most items do require a two-person lift.

    Specifications

    Material: Particle Board
    Drawer type: Slim wall soft-close
    Drawer Internal Dimensions: 536 mm W x 383 mm L x 175 mm H
    Shelf Internal Dimensions: 537 mm W x 444 mm L
    Inclusions: Assembly fixings
    Exclusions: Installation fixings
    Notes/Additional Information: Refer to measuring and installation guidelines

    Warranty

    With a legacy of over 75 years, Stegbar is your trusted partner. Our enduring quality and industry-leading warranty provides peace of mind. When you choose Stegbar, you choose 7 years of worry-free warranty coverage for your wardrobe, with proper care.

    Delivery Notes

    We're pleased to offer our buy online products to many Australian locations. You can check your delivery eligibility with our handy postcode checker.

    Your order will be delivered to your front door or ground floor (excluding steps/stairs and lifts). Unpacking, rubbish removal and assembly is not included in this service.

    For homes, town houses and apartments with loading docks, our courier's got it covered and you're free to go about your day. Except for undocked apartment buildings where we'll need you there to accept delivery.

    Our delivery hours are on weekdays, from 6am to 7pm. Find more delivery info on our support page.

    icon-1.svg

    Renovate your way.

    Personalise your products and raise the bar.

    icon-2.svg

    Not sure? No worries.

    Enjoy peace of mind with our 48-hour cancellation policy.

    icon-3.svg

    Bringing reputation to renovation.

    Stegbar is a trusted brand with a reputation for quality and durability.

    icon-5.svg

    Install made easy.

    Our easy-to-follow assembly guidelines will turn anyone into a DIY expert.

    total price
    $2,538.00
    inc. GST
    show details
    Please enter your postcode to set your delivery location.
    Delivery available to
    Expected delivery:
    Change
    buy now
    Website Logo
    • Products
    • Installation Service
    • Projects
    • Explore
    • About
    • Contact
    • Locations
    • Website Terms of Use
    • Product Care & Maintenance
    • Warranty
    • Terms and Conditions
    • Commercial Credit Application
    • Privacy Policy
    Subscribe for Updates
    Sign up to get the latest product news and discount offers.
    Copyright 2025 Stegbar © All rights reserved | Product design and availability may vary between serviceable states

    My Collection

    my Products
    my INSPIRATION

    Your Cart

    QUOTES

    x0

    No products in the Quote Drawer.

    DIY BUY NOW PRODUCTS

    0

    No DIY Buy Now products in the Cart.

    PROCEED TO CHECKOUT
    Do you want to remove the product from cart?

    Your Stegbar Quote

    item(s)

    Attach Documents(Plans, Reports, Photos)

    Installation

    i

    Product Selection Summary

    No products in the Quote Drawer.

    Your Quote

    item(s)
    We are only able to take Window and Door enquiries in Tasmania.
    We are only able to take Window and Door enquiries in Tasmania.
    Please check the captcha

    Quote submitted

    Thank you for your quote request.

    We look forward to helping you with your project.

    Next Steps:

    You will receive an email confirming your enquiry number.

    A Stegbar team member will contact you within two business days to discuss your project.

    Enquire Now

    We are only able to take Window and Door enquiries in Tasmania.
    We are only able to take Window and Door enquiries in Tasmania.
    i
    Please check the captcha

    Barla

    How can we help you today?

    AI generated content.

    Loading chat...

    ⚠️

    Chat is currently unavailable. Please try again later.